Konkurs SARP nr 1085 – Filharmonia im. K. Szymanowskiego w Krakowie
KONKURS MIĘDZYNARODOWY, DWUETAPOWY, ARCHITEKTONICZNO-URBANISTYCZNY
NA OPRACOWANIE KONCEPCJI NOWEJ SIEDZIBY FILHARMONII IM. K. SZYMANOWSKIEGO W KRAKOWIE

Aktualności:
03.04.2026
Organizator zaktualizował poniżej wyniki rozstrzygnięcia Konkursu dodając Opisy do Prac konkursowych oraz publikując plansze i opisy do Opracowań studialnych.
Organizator udostępnia także link do pobrania wersji plansz Prac konkursowych oraz Opracowań studialnych w oryginalnej rozdzielczości:
Prace konkursowe i Opracowania studialne oryginalna rozdzielczość
31.03.2026
Opublikowano wyjaśnienia 15 treści Regulaminu Konkursu (Pytania 84 do 85)
Wyjaśnienia 15 treści Regulaminu konkursu
23.03.2026
Opublikowano informację o wynikach rozstrzygnięcia Konkursu.
Oficjalna Informacja o wynikach rozstrzygnięcia Konkursu Filharmonia
I NAGRODA
I Nagroda pieniężna w wysokości 170 000,00 zł brutto oraz Nagroda w postaci zaproszenia do negocjacji w trybie zamówienia z wolnej ręki na wykonanie usługi na podstawie wybranej Pracy konkursowej zostaje przyznana:
Praca konkursowa o Numerze identyfikacyjnym Uczestnika 025
(Numer nadany przez Sekretarza Konkursu: 003)
Uczestnik Konkursu samodzielnie biorący udział w Konkursie:
K. Ingarden, J. Ewy Architekci sp. z o.o.
ul. Grabowskiego 5/3
31-126 Kraków
Skład zespołu autorskiego:
Krzysztof Ingarden (Autor Pracy konkursowej), Jacek Ewý (Autor Pracy konkursowej), Paweł Maryńczuk (Członek zespołu konkursowego), Keiji Oguchi – Nagata Acoustics Inc. (Współpraca – akustyka sal koncertowych), Piotr Kozłowski – PAK Pracownia Akustyczna Kozłowski (Współpraca – scenotechnika, elektroakustyka, oświetlenie, akustyka budynku), Mariusz Szefer – GSBK Biuro Konstrukcyjne (Współpraca – projekt konstrukcji), Marta Mazgaj – ARUP (Współpraca – projekt instalacji), Marta Szar-Wojasińska (Współpraca – architektura krajobrazu), Michał Przetaczek – MPVIS (Współpraca – wizualizacje), Marcin Ewý (Członek zespołu konkursowego), Bartosz Kardaś (Członek zespołu konkursowego), Sylwester Staniucha (Członek zespołu konkursowego), Katarzyna Cieślak-Śliwa (Członek zespołu konkursowego), Ola Maslenkowa (Członek zespołu konkursowego), Joanna Mikołajec (Członek zespołu konkursowego), stud. Oliwia Żarnowska (Członek zespołu konkursowego).
PREZENTACJA I NAGRODA
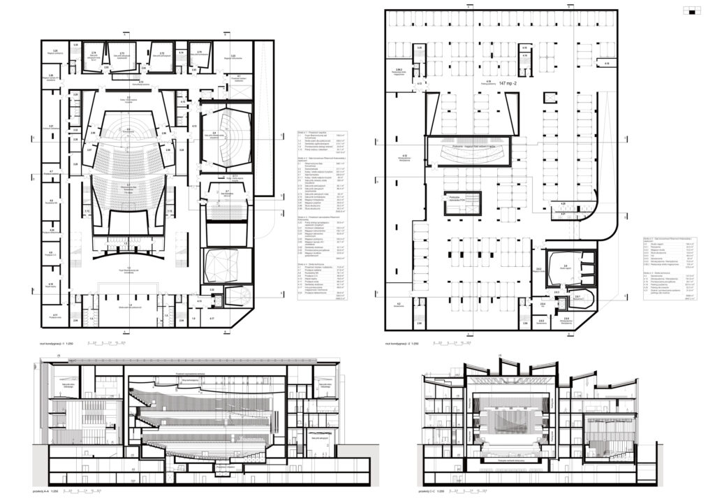
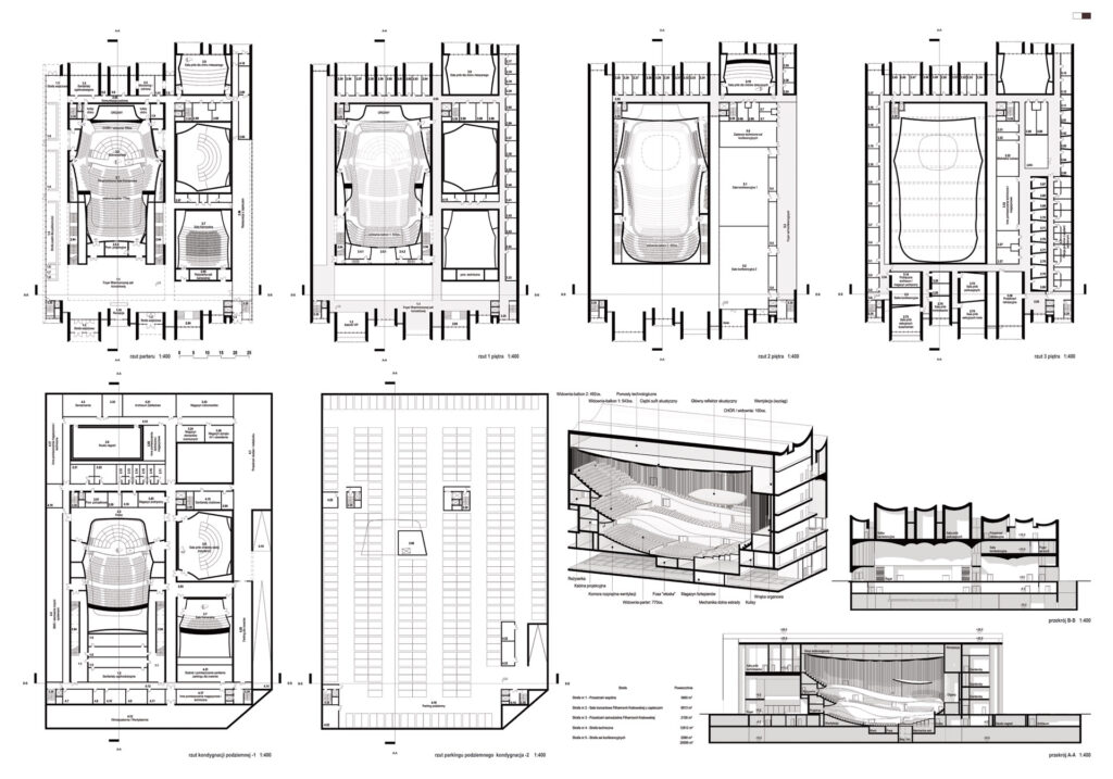
Praca konkursowa 025






CZĘŚĆ OPISOWA Praca konkursowa 025
Opracowanie studialne do Pracy konkursowej 025


CZĘŚĆ OPISOWA Opracowanie studialne 025
II NAGRODA
II Nagroda pieniężna w wysokości 100 000,00 zł brutto zostaje przyznana:
Praca konkursowa o Numerze identyfikacyjnym Uczestnika 011
(Numer nadany przez Sekretarza Konkursu: 005)
Uczestnik Konkursu samodzielnie biorący udział w Konkursie:
gmp International GmbH
Hardenbergstr. 4-5
10623 Berlin
Niemcy
Skład zespołu autorskiego:
Stephan Schütz (Główny projektant), Nicolas Pomränke (Główny projektant), Stefan Hornscheidt (Koordynacja projektu), Alicja Nowak (Koordynacja i opracowanie koncepcji konkursowej), Yahan Zeng (Opracowanie koncepcji filharmonicznej sali koncertowej), Chi Zhang (Opracowanie koncepcji sali kameralnej), Annette Löber (Opracowanie koncepcji sal koncertowych), Reibun Funaki (Opracowanie rzutów), Anna Bulanda-Jansen (Opracowanie rzutów), Eckhard Kahle (Konsultacje akustyczne dot. filharmonicznej sali koncertowej), Joerg Kümmel (Konsultacje akustyczne dot. sali kameralnej), Christoph Franzen (Konsultacje dot. projektu sceny i techniki scenicznej), Sven Plieninger (Konsultacje dot. koncepcji konstrukcji), Sebastian Fauck (Koncepcja krajobrazu), Matthias Rammig (Konsultacje dot. rozwiązań zrównoważonego rozwoju).
PREZENTACJA II NAGRODA
Praca konkursowa 011






CZĘŚĆ OPISOWA Praca konkursowa 011
Opracowanie studialne do Pracy konkursowej 011


CZĘŚĆ OPISOWA Opracowanie studialne 011
WYRÓŻNIENIE
Nagroda pieniężna w formie wyróżnienia w wysokości 50 000,00 zł brutto zostaje przyznane:
Praca konkursowa o Numerze identyfikacyjnym Uczestnika 030
(Numer nadany przez Sekretarza Konkursu: 002)
Uczestnik Konkursu samodzielnie biorący udział w Konkursie:
JSK Architekci Sp. z o.o.
ul. Żwirki i Wigury 18
02-092 Warszawa
Skład zespołu autorskiego:
Zbigniew Pszczulny (Opracowanie pracy konkursowej), Mariusz Rutz (Opracowanie pracy konkursowej), Piotr Bury (Opracowanie pracy konkursowej), Sebastian Kawalec (Opracowanie pracy konkursowej), Piotr Słomianowski (Opracowanie pracy konkursowej), Natalia Trabelsi (Opracowanie pracy konkursowej), Anna Wiechietek (Opracowanie pracy konkursowej w zakresie architektury krajobrazu), Tateo Nakajima (Opracowanie pracy konkursowej w zakresie akustyki), Philip Wright (Opracowanie pracy konkursowej w zakresie akustyki), Edward Arenius (Opracowanie pracy konkursowej w zakresie akustyki), Jennifer Kolosowska (Opracowanie pracy konkursowej w zakresie akustyki), Paul Adams (Opracowanie pracy konkursowej w zakresie akustyki), Matthew Atwood (Opracowanie pracy konkursowej w zakresie akustyki), Foteini Kanellopoulou (Opracowanie pracy konkursowej w zakresie akustyki), Vanessa Keung (Opracowanie pracy konkursowej w zakresie akustyki), Maggie Wang Zuniga (Opracowanie pracy konkursowej w zakresie akustyki), Taewon Park (Opracowanie pracy konkursowej w zakresie akustyki), Nick MacLiammoir (Opracowanie pracy konkursowej w zakresie akustyki).
PREZENTACJA WYRÓŻNIENIA
Praca konkursowa 030






CZĘŚĆ OPISOWA Praca konkursowa 030
Opracowanie studialne do Pracy konkursowej 030


CZĘŚĆ OPISOWA Opracowanie studialne 030
WYRÓŻNIENIE
Nagroda pieniężna w formie wyróżnienia w wysokości 50 000,00 zł brutto zostaje przyznane:
Praca konkursowa o Numerze identyfikacyjnym Uczestnika 017
(Numer nadany przez Sekretarza Konkursu: 004)
Uczestnicy Konkursu wspólnie biorący udział w Konkursie:
1. PITÁGORAS – ARQUITECTURA E ENGENHARIA INTEGRADAS, LDA
Travessa João Oliveira Salgado, nº 176 – Costa
4810-015 Guimarães
Portugal
2. SBS ENGINEEING GROUP SP. Z O.O.
uL. Olszanicka 1
30-241 Kraków
Skład zespołu autorskiego:
MAHER MATAR (AUTOR – PROJEKT ARCHITEKTONICZNY), RAUL ROQUE (AUTOR – PROJEKT ARCHITEKTONICZNY), ALEXANDRE COELHO LIMA (AUTOR – PROJEKT ARCHITEKTONICZNY), MANUEL ROQUE (AUTOR – PROJEKT ARCHITEKTONICZNY), ANNA KOWAL (WSPÓŁAUTOR – PROJEKT ARCHITEKTONICZNY), TOMASZ GIEFERT (WSPÓŁAUTOR- PROJEKT ARCHITEKTONICZNY), AGNIESZKA GOZDEK (WSPÓŁAUTOR – PROJEKT ARCHITEKTONICZNY), ANDRÉ MALHEIRO (WSPÓŁAUTOR – ARCHITEKTURA – MODELOWANIE 2D I 3D), FÁBIO ACCIAIUOLI DE CASTRO (WSPÓŁAUTOR – ARCHITEKTURA – MODELOWANIE 2D I 3D), MARGARIDA COSTA PINTO (WSPÓŁAUTOR – ARCHITEKTURA – MODELOWANIE 2D I 3D), THOMAS WULFRANK (WSPÓŁPRACA – PROJEKT AKUSTYCZNY PRZESTRZENI MUZYCZNYCH), VINCENT BERRIER (WSPÓŁPRACA – PROJEKT AKUSTYKI, SYMULACJE I OBLICZENIA), OCTÁVIO INÁCIO (WSPÓŁPRACA – AKUSTYKA), SŁAWOMIR PASTUSZKA (WSPÓŁPRACA–KONSTRUKCJA (STRUCTURES), PIOTR KORWIN-PIOTROWSKI (WSPÓŁPRACA – INSTALACJE (MEP), MICHAŁ MATYJASZCZYK (WSPÓŁPRACA – INSTALACJE (MEP), WIKTOR KOWALSKI (WSPÓŁPRACA –- ROZWIĄZANIA PRO-ŚRODOWISKOWE (SUSTAINABILITY), MAGDALENA PAWELCZAK (WSPÓŁPRACA – ROZWIĄZANIA PROŚRODOWISKOWE (SUSTAINABILITY), JAN CIEŚLA (WSPÓŁPRACA – DOSTĘPNOŚĆ (INCLUSIVE DESIGN).
PREZENTACJA WYRÓŻNIENIA
Praca konkursowa 017






CZĘŚĆ OPISOWA Praca konkursowa 017
Opracowanie studialne do Pracy konkursowej 017


CZĘŚĆ OPISOWA Opracowanie studialne 017
WYRÓŻNIENIE
Nagroda pieniężna w formie wyróżnienia w wysokości 50 000,00 zł brutto zostaje przyznane:
Praca konkursowa o Numerze identyfikacyjnym Uczestnika 037
(Numer nadany przez Sekretarza Konkursu: 001)
Uczestnik Konkursu samodzielnie biorący udział w Konkursie:
PLUS3-ARCHITEKCI Sp. z o. o.
ul. Chłopickiego 7/9 lok 62
04-314 Warszawa
Skład zespołu autorskiego:
Katarzyna Głażewska (Architekt, Autor), Krzysztof Bagiński (Architekt, Autor), Patryk Rosiński (Architekt), Szymon Pawelczuk (Architekt), Hanna Kazantseva (Architekt), Pola Machinska (Architekt), Grażyna Woźniak-Głażewska (Zespół), Jadwiga Trzeciakowska (Zespół), Karolina Orłowska (Stażysta).
PREZENTACJA WYRÓŻNIENIA
Praca konkursowa 037






CZĘŚĆ OPISOWA Praca konkursowa 037
Opracowanie studialne do Pracy konkursowej 037


CZĘŚĆ OPISOWA Opracowanie studialne 037
Organizator informuje, iż:
- Oficjalne publiczne ogłoszenie wyników Konkursu odbędzie się dnia 23.03.2026 r. o godz. 13:30 w Sali koncertowej Filharmonii im. Karola Szymanowskiego ul. Zwierzyniecka 1 w Krakowie.
- Wystawa pokonkursowa będzie dostępna w Foyer Sali koncertowa Filharmonii im. Karola Szymanowskiego ul. Zwierzyniecka 1 w Krakowie (parter budynku wejście od ul. Straszewskiego) w dniach od 24.03.2026 r. do 17.04.2026 r. Nagrodzone Prace konkursowe będą także prezentowane od dnia 24.03.2026 r. na stronie internetowej Konkursu (https://sarp.krakow.pl/).
- Dyskusja pokonkursowa odbędzie się w dniu 17.04.2026 r. o godzinie 16.00 w Foyer Sali koncertowa Filharmonii im. Karola Szymanowskiego ul. Zwierzyniecka 1 w Krakowie (parter budynku wejście od ul. Straszewskiego).
16.03.2026
Opublikowano wyjaśnienia 14 treści Regulaminu Konkursu (Pytanie 83)
Wyjaśnienia 14 treści Regulaminu konkursu
26.02.2026
Opublikowano wyjaśnienia 13 treści Regulaminu Konkursu (Pytanie 82)
Wyjaśnienia 13 treści Regulaminu konkursu
09.02.2026
Opublikowano wyjaśnienia 12 treści Regulaminu Konkursu (Pytania 79 do 81)
Wyjaśnienia 12 treści Regulaminu konkursu
02.02.2026
Opublikowano wyjaśnienia 11 treści Regulaminu Konkursu (Pytania 75 do 78)
Wyjaśnienia 11 treści Regulaminu konkursu
22.01.2026
Opublikowano wyjaśnienia 10 treści Regulaminu Konkursu (Pytania 73 do 74)
Wyjaśnienia 10 treści Regulaminu konkursu
09.01.2026
Opublikowano wyjaśnienia 9 treści Regulaminu Konkursu (Pytania 66 do 72)
Wyjaśnienia 9 treści Regulaminu konkursu
19.12.2025
Opublikowano informację o wynikach rozstrzygnięcia Etapu I Konkursu czyli kwalifikacji Uczestników konkursu do Etapu II Konkursu po przeprowadzonej przez Sąd konkursowy ocenie Opracowań studialnych.
Informacja o wynikach rozstrzygnięcia Etapu I Konkursu
01.12.2025
Opublikowano wyjaśnienia 8 treści Regulaminu Konkursu (Pytania 60 do 65)
Wyjaśnienia 8 treści Regulaminu konkursu
28.11.2025
Opublikowano wyjaśnienia 7 treści Regulaminu Konkursu (Pytanie 59)
Wyjaśnienia 7 treści Regulaminu konkursu
27.11.2025
Opublikowano wyjaśnienia 6 treści Regulaminu Konkursu (Pytania 54 do 58)
Wyjaśnienia 6 treści Regulaminu konkursu
17.11.2025
Opublikowano wyjaśnienia 5 treści Regulaminu Konkursu (Pytania 45 do 53)
Wyjaśnienia 5 treści Regulaminu konkursu
04.11.2025
W związku z wyjaśnieniami nr 4 treści Regulaminu konkursu (odpowiedź na pytanie 44) Organizator dokonał w dniu 04.11.2025 r. zmiany nr 2 treści Regulaminu konkursu.
Zmiana nr 2 dotyczy korekty formatu postaci elektronicznej i fizycznej Opracowań studialnych i została wprowadzona w:
1. Rozdział V, ust. 3, pkt 2) lit. a)
Było:
a) CZĘŚĆ GRAFICZNĄ Opracowania studialnego:
– pliki w formacie TIF lub JPG z arkuszami A3 o rozdzielczości 300 dpi (zaleca się przesłanie każdego arkusza jako oddzielny plik TIF lub JPG),
Zmiana na:
a) CZĘŚĆ GRAFICZNĄ Opracowania studialnego:
– pliki w formacie TIF lub JPG z planszami 100x70cm o rozdzielczości 300 dpi (zaleca się przesłanie każdej planszy jako oddzielny plik TIF lub JPG).
2. Rozdział V, ust. 3, pkt 3) lit. a) oraz lit. b)
Było:
a) CZĘŚĆ GRAFICZNĄ Opracowania studialnego:
– wydrukowane arkusze w formacie A3 – zaleca się spięcie arkuszy w jeden zeszyt formatu A3 wraz z częścią opisową w A4.
b) CZĘŚĆ OPISOWĄ Opracowania studialnego
– wydrukowany zeszyt formatu A4 – zaleca się spięcie części opisowej w jeden zeszyt formatu A3 wraz z częścią graficzną.
Zmiana na:
a) CZĘŚĆ GRAFICZNĄ Opracowania studialnego:
– wydrukowane plansze w formacie 100×70 cm naklejony na sztywny, lekki podkład.
b) CZĘŚĆ OPISOWĄ Opracowania studialnego
– wydrukowany zeszyt formatu A4.
Zmieniony Regulamin konkursu dostępny jest do pobrania poniżej oraz w części „Załączniki”.
Regulamin Konkursu_pl ZMIANA NR 2
04.11.2025
Opublikowano wyjaśnienia 4 treści Regulaminu Konkursu (Pytania 39 do 44)
Wyjaśnienia 4 treści Regulaminu konkursu
24.10.2025
Opublikowano informację o wynikach dopuszczenia do udziału w Konkursie na podstawie wniosków o dopuszczenie
Informacja o wynikach dopuszczenia do udziału w Konkursie Filharmonia Kraków
30.09.2025
Opublikowano wyjaśnienia 3 treści Regulaminu Konkursu (Pytania 23 do 33)
Wyjaśnienia 3 treści Regulaminu konkursu
25.09.2025
Opublikowano wyjaśnienia 2 treści Regulaminu Konkursu (Pytania 21 do 22)
Wyjaśnienia 2 treści Regulaminu konkursu
——————————————————————————————————————–
23.09.2025
W związku z wyjaśnieniami treści Regulaminu konkursu Organizator dokonał w dniu 23.09.2025 r. zmiany i korekty nr 1 treści Regulaminu konkursu.
Zmiana nr 1 dotyczy podstaw wykluczania z postepowania oraz warunki udziału, które zostaną określone w postępowaniu prowadzonym w trybie z wolnej ręki i została wprowadzona w:
Rozdział XI, ust. 1, pkt 1) lit. bb) 2).
Było:
2) minimum jedną osobą, Projektantem Technologii Scenicznej, Oświetlenia Scenicznego i Nagłośnienia Sal, która będzie uczestniczyć w opracowaniu Dokumentacji projektowej i pełnieniu nadzoru autorskiego, która w okresie ostatnich 15 lat przed otrzymaniem zaproszenia do udziału w negocjacjach, opracowała (jako autor lub współautor) projekt technologii scenicznej, projekt oświetlenia scenicznego i projekt nagłośnienia sali dla co najmniej dwóch sal koncertowych dedykowanych muzyce klasycznej lub sal operowych lub teatralnych o pojemności widowni nie mniejszej niż 1 000 miejsc każda oraz pełniła nadzór autorski w zakresie technologii scenicznej, oświetlenia scenicznego i nagłośnienia nad tymi projektami do momentu uzyskania pozwolenia na użytkowanie,
Zmiana na:
2) minimum
- jedną osobą, Projektantem Technologii Scenicznej, która będzie uczestniczyć w opracowaniu Dokumentacji projektowej i pełnieniu nadzoru autorskiego, która w okresie ostatnich 15 lat przed otrzymaniem zaproszenia do udziału w negocjacjach, opracowała (jako autor lub współautor) projekt technologii scenicznej dla co najmniej dwóch sal koncertowych dedykowanych muzyce klasycznej lub sal operowych lub teatralnych o pojemności widowni nie mniejszej niż 1 000 miejsc każda oraz pełniła nadzór autorski w zakresie technologii scenicznej nad tymi projektami do momentu uzyskania pozwolenia na użytkowanie,
- jedną osobą, Projektantem Oświetlenia Scenicznego, która będzie uczestniczyć w opracowaniu Dokumentacji projektowej i pełnieniu nadzoru autorskiego, która w okresie ostatnich 15 lat przed otrzymaniem zaproszenia do udziału w negocjacjach, opracowała (jako autor lub współautor) projekt oświetlenia scenicznego dla co najmniej dwóch sal koncertowych dedykowanych muzyce klasycznej lub sal operowych lub teatralnych o pojemności widowni nie mniejszej niż 1 000 miejsc każda oraz pełniła nadzór autorski w zakresie oświetlenia scenicznego nad tymi projektami do momentu uzyskania pozwolenia na użytkowanie,
- jedną osobą, Projektantem Nagłośnienia Sal, która będzie uczestniczyć w opracowaniu Dokumentacji projektowej i pełnieniu nadzoru autorskiego, która w okresie ostatnich 15 lat przed otrzymaniem zaproszenia do udziału w negocjacjach, opracowała (jako autor lub współautor) projekt nagłośnienia sali dla co najmniej dwóch sal koncertowych dedykowanych muzyce klasycznej lub sal operowych lub teatralnych o pojemności widowni nie mniejszej niż 1 000 miejsc każda oraz pełniła nadzór autorski w zakresie nagłośnienia nad tymi projektami do momentu uzyskania pozwolenia na użytkowanie.
UWAGA
Organizator dopuszcza, aby powyższe warunki z pkt 1., 2. i 3. spełniała jedna osoba.
Korekta nr 1 dotyczy omyłki pisarskiej w nazwie Załącznika 3d do Regulaminu. i została wprowadzona w:
Rozdział IV, ust. 2, pkt 2) lit. c)
Było:
c) W przypadku, jeśli Uczestnik Konkursu polega na zasobach innych podmiotów, składa zobowiązanie tych podmiotów do udostępnienia zasobów zgodne co do treści z postanowieniami ust. 1 pkt 9) niniejszego Rozdziału wg Załącznika nr 3d1 do Regulaminu.
Wymagana postać elektroniczna opatrzona kwalifikowanym podpisem elektronicznym podmiotu udostępniającego zasoby lub osoby/osób upoważnionych zgodnie z zasadą reprezentacji do składania oświadczeń woli w imieniu podmiotu udostępniającego zasoby lub w inny sposób dopuszczony przepisami ustawy Pzp i aktów wykonawczych .
Zaleca się przesłanie pliku w formacie PDF.
Korekta na:
c) W przypadku, jeśli Uczestnik Konkursu polega na zasobach innych podmiotów, składa zobowiązanie tych podmiotów do udostępnienia zasobów zgodne co do treści z postanowieniami ust. 1 pkt 9) niniejszego Rozdziału wg Załącznika nr 3d do Regulaminu.
Wymagana postać elektroniczna opatrzona kwalifikowanym podpisem elektronicznym podmiotu udostępniającego zasoby lub osoby/osób upoważnionych zgodnie z zasadą reprezentacji do składania oświadczeń woli w imieniu podmiotu udostępniającego zasoby lub w inny sposób dopuszczony przepisami ustawy Pzp i aktów wykonawczych .
Zaleca się przesłanie pliku w formacie PDF.
Zmieniony Regulamin konkursu dostępny jest do pobrania poniżej oraz w części „Załączniki”.
Regulamin Konkursu_pl ZMIANA NR 1
——————————————————————————————————————–
23.09.2025
Opublikowano wyjaśnienia 1 treści Regulaminu Konkursu (Pytania 1 do 20)
Wyjaśnienia 1 treści Regulaminu Konkursu
——————————————————————————————————————–
11.09.2025
Ogłoszenie o konkursie zostało opublikowane w Dzienniku Urzędowym Unii Europejskiej.
Ogłoszenie o konkursie opublikowane w DUUE
Sąd konkursowy:
Sąd Konkursowy składa się z 17 osób. W skład Sądu Konkursowego wchodzą:
prof. arch. Ewa Kuryłowicz – Przewodniczący Sądu Konkursowego.
Sędzia Konkursowy Stowarzyszenia Architektów Polskich (SARP) Oddział Warszawa
arch. Marcin Brataniec – Sędzia referent.
Sędzia Konkursowy Stowarzyszenia Architektów Polskich (SARP) Oddział Kraków
arch. Jette Hopp – Członek Sądu Konkursowego.
prof. arch. Artur Jasiński – Członek Sądu Konkursowego.
Sędzia Konkursowy Stowarzyszenia Architektów Polskich (SARP) Oddział Kraków
arch. Marcin Sadowski – Członek Sądu Konkursowego.
Sędzia Konkursowy Stowarzyszenia Architektów Polskich (SARP) Oddział Warszawa
dr arch. Piotr Wróbel – Członek Sądu Konkursowego.
Sędzia Konkursowy Stowarzyszenia Architektów Polskich (SARP) Oddział Kraków
dr hab. inż. arch. Mariusz Twardowski, prof. PK – Członek Sądu Konkursowego
Izba Architektów Rzeczypospolitej Polskiej (IARP)
Iwona Gibas – Członek Zarządu WM– Członek Sądu Konkursowego.
Sędzia ze strony Organizatora Województwa Małopolskiego.
prof. dr hab. inż. Jan Tadeusz Duda – Przewodniczący Sejmiku WM – Członek Sądu Konkursowego.
Sędzia ze strony Organizatora Województwa Małopolskiego
Anna Hamala – Dyrektor Departamentu Inwestycji Strategicznych UMWM – Członek Sądu Konkursowego.
Sędzia ze strony Organizatora Województwa Małopolskiego
Monika Gubała – Dyrektor Departamentu Kultury i Dziedzictwa Narodowego UMWM – Członek Sądu Konkursowego.
Sędzia ze strony Organizatora Województwa Małopolskiego.
Mateusz Prendota – Dyrektor Filharmonii Krakowskiej – Członek Sądu Konkursowego.
Sędzia ze strony Organizatora Województwa Małopolskiego
Beata Płoska – Zastępca Dyrektora Filharmonii Krakowskiej – Członek Sądu Konkursowego.
Sędzia ze strony Organizatora Województwa Małopolskiego
Joanna Wnuk – Nazarowa – dyrygentka, kompozytorka – Członek Sądu Konkursowego.
Sędzia ze strony Organizatora Województwa Małopolskiego
Andrzej Kosendiak – dyrygent, Doradca Dyrektora Narodowego Forum Muzyki we Wrocławiu do spraw artystycznych – Członek Sądu Konkursowego.
Sędzia ze strony Organizatora Województwa Małopolskiego
Michał Klauza – dyrygent, Dyrektor artystyczny Filharmonii Krakowskiej – Członek Sądu Konkursowego.
Sędzia ze strony Organizatora Województwa Małopolskiego.
dr hab. inż. arch. Andrzej Kłosak, prof. PK – Doradca akustyczny WM – Członek Sądu Konkursowego.
Sędzia ze strony Organizatora Województwa Małopolskiego
Zastępca Sędziego referenta
Funkcję Zastępcy Sędziego referenta pełni arch. Marek Bystroń – Stowarzyszenie Architektów Polskich (SARP) Oddział Kraków
Zastępca Sędziego referenta nie jest członkiem Sądu Konkursowego.
Zespół Sekretarza Konkursu
Funkcję Sekretarza Konkursu pełni: arch. kraj. Rafał Mroczkowski – Sędzia Konkursowy Stowarzyszenia Architektów Polskich (SARP) Oddział Warszawski.
Funkcję Zastępcy Sekretarza Konkursu pełnią:
arch. Magdalena Buczyńska – Prezes Stowarzyszenia Architektów Polskich (SARP) Oddział Kraków.
Agnieszka Galas – Pracownik UMWM
Katarzyna Nowosad – Pracownik UMWM
Sekretarz Konkursu oraz osoby wchodzące w skład Zespołu Sekretarza Konkursu nie są członkami Sądu Konkursowego.
Harmonogram konkursu:
Publikacja konkursu w Dzienniki Urzędowym Unii Europejskiej – 11.09. 2025
Termin składania pytań o wyjaśnienie treści Regulaminu Konkursu dotyczących w szczególności warunków dopuszczenia do udziału w Konkursie – do 28.09.2025
Termin składania wniosków o dopuszczenie do udziału w Konkursie – do 03.10.2025
Wysłanie zawiadomień do uczestników o dopuszczeniu do udziału w Konkursie i zaproszeń do złożenia Prac konkursowych – do 24.10.2025
Zalecany termin składania zapytań o wyjaśnienie zapisów Regulaminu Konkursu dotyczących w szczególności opracowania i składania Opracowań studialnych – do 25.11.2025
Termin złożenia Opracowań studialnych – do 05.12.2025 do godz. 15:00
Kwalifikacja do etapu II Konkursu – 19.12.2025
Zalecany termin składania zapytań o wyjaśnienie zapisów Regulaminu Konkursu dotyczących w szczególności opracowania i składania Prac konkursowych – do 11.02.2026
Termin złożenia Prac konkursowych– do 06.03.2026 do godz. 15:00
Oficjalne ogłoszenie wyników konkursu – 23.03.2026
O dacie wystawy oraz dyskusji pokonkursowej Uczestnicy zostaną poinformowani odrębnie.
Pula nagród (kwoty brutto) – 420 000,00 zł brutto
I nagroda 170 000,00 zł brutto oraz zaproszenie do negocjacji w trybie zamówienia z wolnej ręki na wykonanie usługi na podstawie wybranej Pracy konkursowej
II nagroda 100 000,00 PLN brutto
Do trzech (3) Nagród pieniężnych w formie wyróżnień w wysokości 50 000,00 zł brutto każda.
Komunikacja:
platforma konkursowa: https://epk.sarp.pl
Załączniki:
Regulamin Konkursu_pl ZMIANA NR 2
Regulamin Konkursu_pl ZMIANA NR 1
UWAGA
Organizator informuje, że Konkurs prowadzony jest w języku polskim. Dokumenty w wersji angielskiej zostały zamieszczone jedynie pomocniczo. W przypadku rozbieżności, obowiązuje wersja w języku polskim.